Six Senses Residences The Forestias: reinterpreting traditional architecture for sustainability and wellbeing.

_project: Six Senses Residences The Forestias
_architecture: Foster + Partners
_location: Bankok, Thailand

Traditional architecture has long served as a repository of cultural values, environmental wisdom, and community-oriented design. Rooted in the specific climates, materials, and lifestyles of their regions, traditional structures often embody principles that align with contemporary ideals of sustainability and wellbeing. Features such as courtyards, natural ventilation systems, and locally sourced materials demonstrate a deep understanding of harmony with nature. Modern architects are increasingly looking to these vernacular approaches to inform designs that address the challenges of climate change and urbanization, creating spaces that not only function but thrive in today’s world. By blending time-tested traditions with cutting-edge technologies, architecture can foster spaces that are both culturally resonant and ecologically conscious.

One project that approaches this harmonious blend is the Six Senses Residences at The Forestias, designed by Foster + Partners in collaboration with DT Design. Located on the outskirts of Bangkok, Thailand, this collection of luxury villas reinterprets traditional Thai architectural elements to create a sustainable, nature-connected living experience. Developed by MQDC, the project represents the principles of the wider Forestias masterplan, emphasizing wellbeing, sustainability, and community.

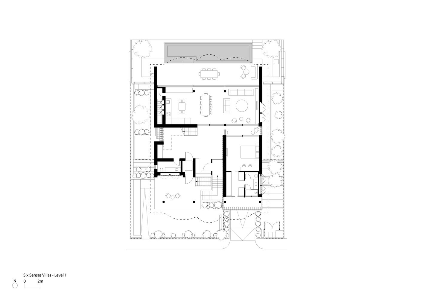
Drawing inspiration from the traditional Thai house, the villas are designed around central courtyards, which serve as shaded gathering spaces for families. Elevated off the ground, the structures maximize natural ventilation, reduce heat gain, and enhance views of the surrounding forest and lagoon. This elevation also offers flood resilience, a critical feature in Thailand’s climate.

The materials and design choices further reflect a commitment to sustainability and cultural relevance. Regionally sourced bamboo is used for screens and panels, providing shading and filtering light into the interiors while showcasing local craftsmanship. The large overhanging roof, inspired by natural forms, integrates photovoltaic panels for renewable energy generation and features a timber soffit that adds warmth to the aesthetic. These elements balance modern luxury with environmental responsibility.

Inside, the villas prioritize flexibility and intergenerational living. Sliding louvre systems allow spaces to be opened for communal interaction or closed for privacy, while designs accommodate diverse family structures. Residents enjoy a seamless connection to nature, with private terraces, infinity pools, and expansive forest views.

The Six Senses Residences at The Forestias represent a thoughtful reinterpretation of Thai heritage, demonstrating how traditional architecture can guide sustainable and wellness-focused living in the modern age.

credits

_article written by Daniela Moreira da Silva
_film by Foster + Partners
_curatorship by Architecture Hunter
_cover and image scroll by Weerapon Singnoi, courtesy of Foster + Partners

_drawnings by Foster + Partners

1. Site Plan

2. Elevations

3. Longitudinal Section

4. Level 1

5. Level 2

6. Lower Ground Floor Plan

You’ve prove to be a great hunter. Now that you have reached the bottom, maybe it’s time to know us more.

learn about us