Salez Agricultural Centre: embracing tradition.

_project: Salez Agricultural Centre
_architecture: Andy Senn Architekt
_location: Salez, Switzerland

The Agricultural Center in Salez, designed by Andy Senn Architekt, represents a thoughtful approach to the future of agriculture, blending tradition and innovation. The design draws on the principles of "low-tech" architecture, reflecting a philosophy that values rediscovering and reinterpreting age-old solutions. This approach, inspired by the ideas of architect Livio Vacchini and Luigi Snozzi, emphasizes simplicity and sustainability. The building incorporates traditional methods, such as using wood and clay for construction and natural ventilation inspired by historical stable designs in the region.

Patrick, the film director who captured the essence of this architectural work, shares his unique perspective: "I have a strong connection to the interplay of timeless architecture and archaic landscape. The simplicity behind the idea of the building, based on Snozzi's idea that everything good has already been thought of and just needs to be rediscovered, immediately appealed to me." This sentiment reflects the center's harmonious relationship with its Alpine surroundings, enhancing its functionality and aesthetic appeal.

Patrick's approach to filmmaking emphasizes the narrative potential of architecture. "Space as such is essential to telling stories. Strong atmospheres create a density that envelops the viewer and draws him into the story," he explains. The Agricultural Center, with its suggestive design and interplay of light and shadow, serves as a dynamic stage that transforms into a protagonist, subtly guiding the viewer through its story.

Reflecting on the filming experience, Patrick hopes viewers will gain "an inspired feeling for the archaism that is reflected in both the building and the landscape." The film captures the building's ability to integrate and resonate with its natural surroundings, demonstrated through varied atmospheric conditions over the three days of shooting. From sunlit clarity to the dramatic effects of a Sahara storm, and finally to the muted, shadowless light, each condition reveals new facets of the center's design.

The Agricultural Center in Salez has a harmonious blend of sustainability, tradition, and a profound connection to the landscape. It invites us to reconsider how buildings can harmonize with their environment, providing spaces that are not only functional but also deeply resonant with their natural context.

credits

_article written by Daniela Moreira Silva
_film by 9Sekunden
_curatorship by
Architecture Hunter
_cover image by 9Sekunden
_image scroll by Seraina Wirz

_drawings by Andy Senn Architekt

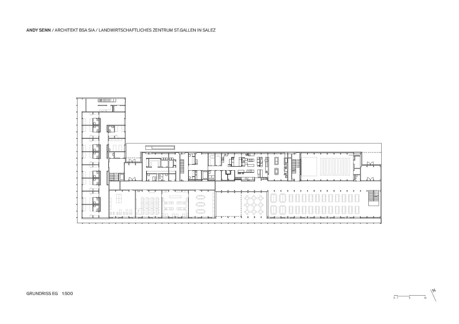
1. Ground Floor Plan

2. Section

You’ve prove to be a great hunter. Now that you have reached the bottom, maybe it’s time to know us more.

learn about us