Mu Feng Yue Hotel: a gateway to well-being.

_project: Mu Feng Yue Hotel
_architecture: STUDIO A+
_location: Fengxi New City, Shanxi Province, China

Architecture can foster well-being of individuals by creating spaces that nurture mental and physical health. Thoughtful design can enhance tranquility, stimulate the senses, and provide a sanctuary from the stresses of daily life. In this context, the Mu Feng Yue Hot Spring Hotel by STUDIO A+ shows us how architectural ingenuity can elevate guest experiences through meticulous attention to design principles and material selection.

The architects have designed the Mu Feng Yue Hot Spring Hotel with the intent to simplify life and provide an environment where guests can find peace and rejuvenation. "We focused on making life simpler, stripping each element of the space down to its essentials," explained the architects in an interview. This visual simplicity aims to offer guests peace of mind and soul, creating an ambiance of tranquility.

Avoiding straightforward designs, the studio conceals and then reveals architectural elements and spaces, allowing guests to experience a journey of discovery. "We choreograph anticipation and imagination, offering guests the opportunity to uncover the beauty of the place on their own," they added. This approach enriches the guest experience, making each visit unique and immersive.

The project’s choice of materials is deliberate and authentic, contributing to the hotel's longevity and aesthetic appeal. "We believe that authentic materials endure. For solid walls, we use poured concrete rather than faux panels, and for ethereal glass pavilions, we eliminate conventional steel structures, making the glass self-supporting," shared the architects. This contrast between heaviness and lightness, roughness and smoothness, enhances the guest's perception of space, providing a rich sensory experience.

The design of the hot spring areas at Mu Feng Yue enhances their therapeutic benefits by integrating the natural environment. Indoor hot spring areas offer serene views of the outside, while outdoor areas provide privacy and shade. The use of Chinese herbs and local flowers not only boosts the therapeutic effects but also adds calming aromas, enriching the overall experience.

Addressing sensory experiences holistically, the design captivates visitors through light, sound, and touch. "The skylight cascades light down the timber-textured concrete wall, accentuating its tactile qualities, while the sound of water trickling down sloped steps imbues the courtyard with serenity," described the architects. Water surfaces soften the outdoor environment, casting reflections that interact with the interiors. The combination of diffused light from overhead lanterns and natural breezes enhances the sensory richness.

credits

_article written by Daniela Moreira Silva
_film by Jiasen Pang
_curatorship by
Architecture Hunter
_cover & image scroll by Archi-translator

_drawings by STUDIO A+

1. Plan

2. -1 Level Plan

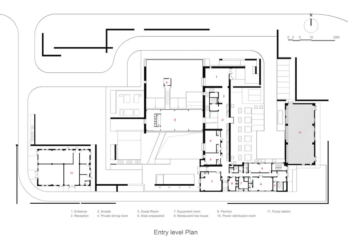
3. Entry Level Plan

4. Roof Top Plan

5. Elevations

6. Elevations

7. Sections

8. Sections

You’ve prove to be a great hunter. Now that you have reached the bottom, maybe it’s time to know us more.

learn about us