Casa Thai: harmonizing visions.

_project: Casa Thai
_architecture: Coletivo de Arquitetos
_location: Aracaju, Brazil

The relationship between client and architect significantly influences the success of architectural projects. This collaborative dynamic is well illustrated in the design of Casa Thai by Coletivo de Arquitetos, where the decision-making process involving site selection was key. Initially, the architects and client jointly selected a plot that supported not only the aesthetic and functional needs but also capitalized on natural environmental benefits such as sea breezes for natural ventilation. This collaboration in the early stages of site selection allowed the architects to design a home that was closely aligned with the client's preferences and the unique aspects of the chosen location.

In Casa Thai, the close working relationship between the client and the architects is evident, demonstrating how direct client involvement can lead to a design that is both reflective of the client's vision and attentive to sustainable and practical solutions in architecture.

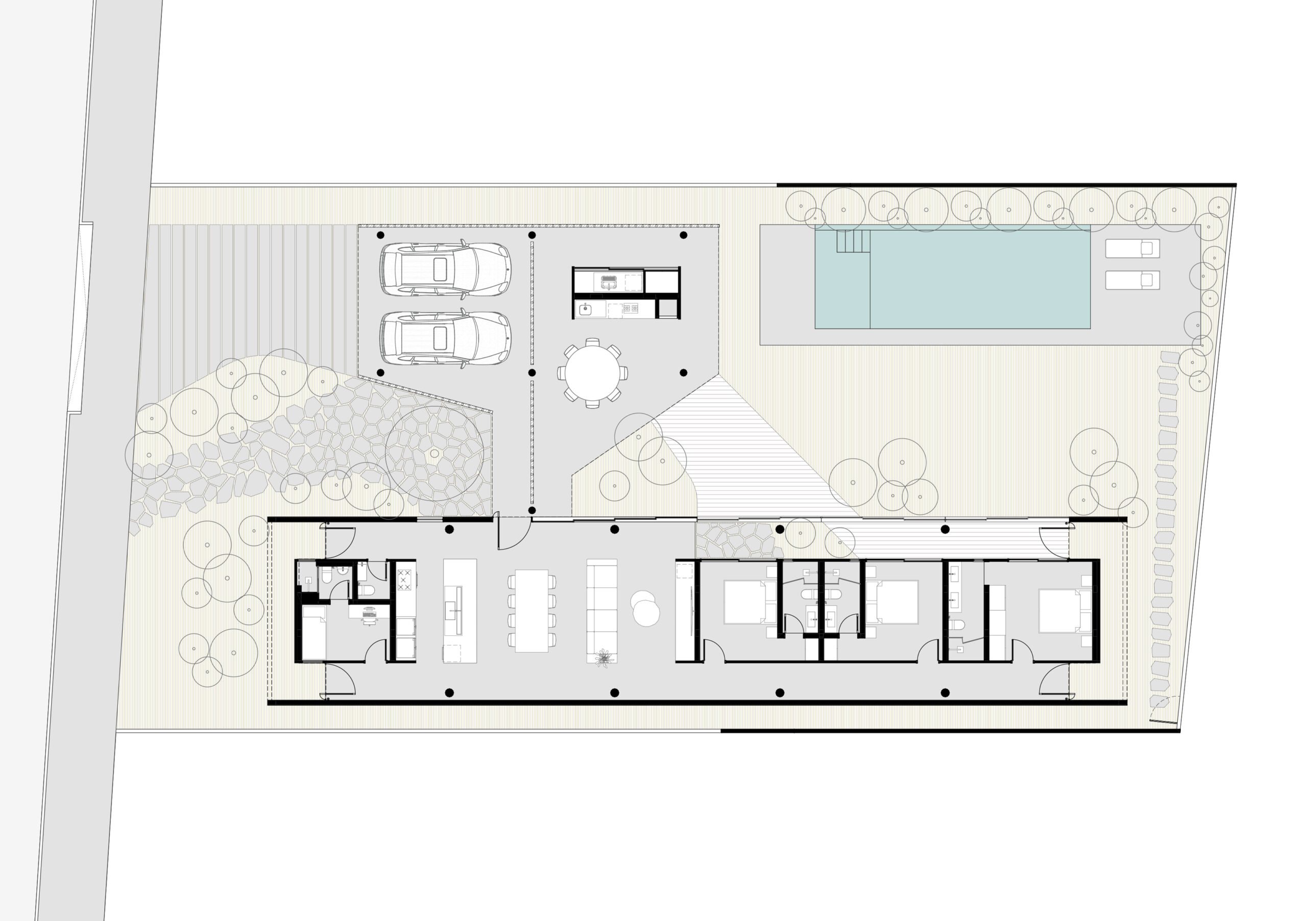
This collaborative approach extends beyond the initial stages of site selection into the broader design and material choices, ensuring that the client's needs and desires are integrated throughout the fabric of the project. In this project, simplicity and functionality were guiding principles, desired by the client and effectively implemented by the architects. The client's preference for a non-luxurious yet robust and low-maintenance design led to the selection of materials.

The use of cobogós, or perforated ceramic elements, also reflects the shared vision of architect and client. These elements not only enhance the aesthetic appeal of the home but also provide practical benefits such as improved ventilation and natural light control. This feature, often seen in traditional Brazilian architecture, was adapted in a modern context, demonstrating how historical influences and contemporary needs can be integrated through collaborative design.

The landscaping of the project reflects the synergy between client and architect. Designed to be both beautiful and functional, the gardens feature native plant species that thrive in local conditions, reducing water usage and maintenance. The landscaping not only complements the architecture but also enhances the microclimate around the home, fulfilling the client's desire for a sustainable outdoor environment.

The relationship between client and architect can deeply influence the outcome of a project. Through active collaboration, each decision, from site selection to material usage and landscaping, was made with a clear understanding of the client's needs and environmental considerations. This project not only meets the practical requirements of the users but also stands as a proof to the value of client involvement in the architectural process.

credits

_article written by Daniela Moreira Silva
_film by Cigarra Filmes
_curatorship by Architecture Hunter
_cover and image scroll by Joana França

_drawings by Coletivo de Arquitetos

1. Plan 1

2. Plan 2

3. Sections

4. Axonometric

You’ve prove to be a great hunter. Now that you have reached the bottom, maybe it’s time to know us more.

learn about us