Tectonics In Motion: How Materiality Shapes Spatial Experience

_presented by Canal & Musse

_project: POA House
_architecture: Bernades Arquitetura
_project management: Canal & Musse
_location: Porto Alegre, RS, Brazil

Architecture has long explored the expressive potential of materials, as active agents in shaping space, atmosphere, and human experience. From the weight of stone in classical temples to the lightness of contemporary timber structures, materiality becomes a language through which architecture communicates intention. Increasingly, architects are returning to a tectonic sensibility: an approach that elevates the articulation of structure, construction, and craft. This renewed attention to how buildings are assembled fosters deeper connections between form and process, encouraging a more authentic relationship between architecture and the landscapes it inhabits. In this context, tectonics becomes not only a technical dimension, but also a poetic one, revealing how material choices define movement, perception, and the identity of a place.

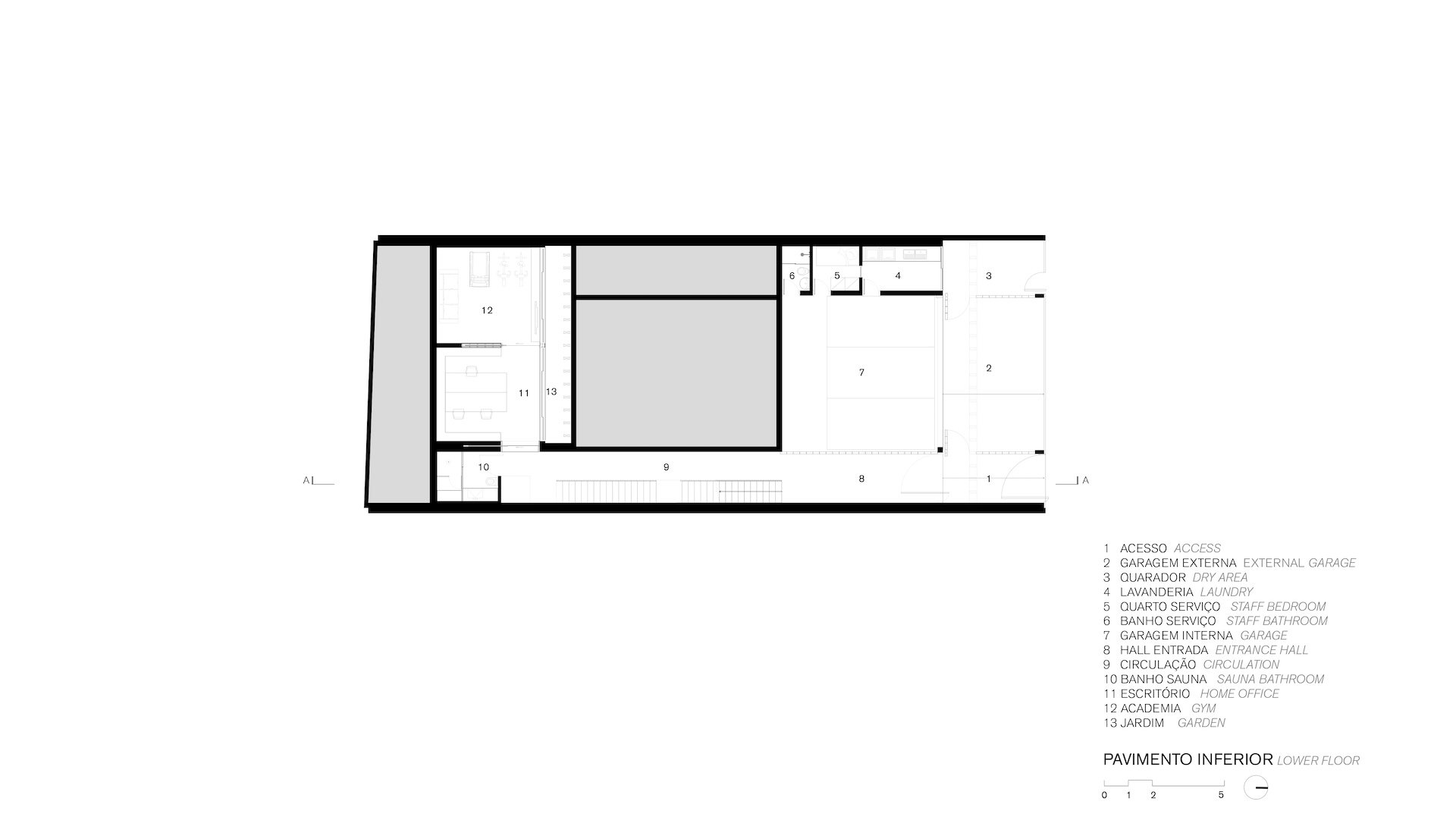
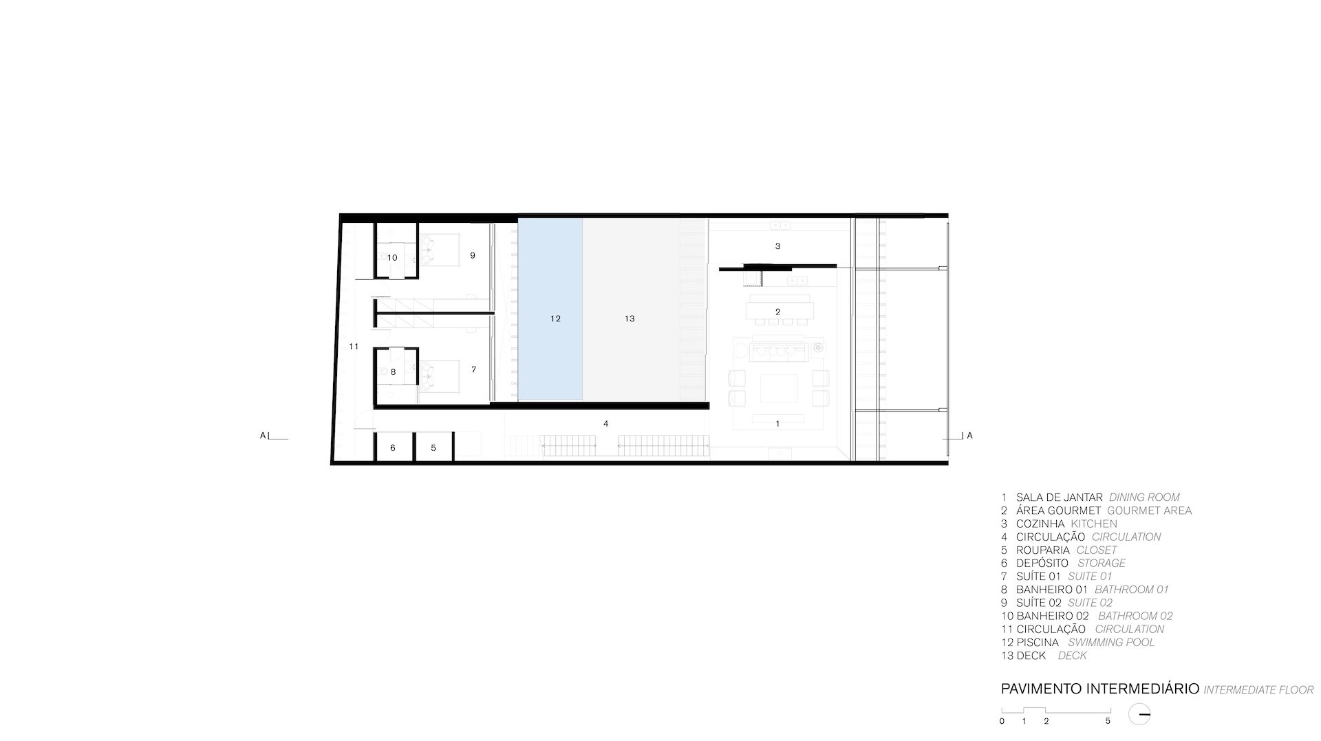
Casa POA, designed by Bernardes Arquitetura, reflects this contemporary approach to material expression. Positioned on a sloped terrain, the residence is arranged across three levels that follow the natural topography and establish a clear spatial organisation. The architecture relies on an interplay between exposed concrete and wood, two materials that guide circulation, highlight structural logic, and shape the home’s atmosphere.

Movement through the house is framed by two continuous concrete walls that establish a vertical passage. Within this space, a wooden staircase introduces a contrasting texture and temperature, adding a sense of tactility to the interior experience. This dialogue between materials continues on the social level, where full-height glazing opens the living areas toward the garden and pool. The result is a fluid transition between interior and exterior, reinforcing the project’s calm and cohesive character.

Along the north façade, vertical wooden brises filter sunlight and ensure privacy while contributing to the rhythm of the architectural composition. These elements work simultaneously as environmental devices and as part of the building’s visual identity, strengthening its material consistency.

Through careful attention to materials, structure, and movement, Casa POA encourages a deeper engagement with its spaces and surroundings, revealing architecture as an experience shaped by both construction and atmosphere.

credits

_article written by Daniela Moreira da Silva
_film by Architecture Hunter
_cover and image scroll by Leornardo Finotti

_drawings by Bernades Arquitetura

1. Lower Floor
2. Intermediate Floor
3. Upper Floor
4. Longitudinal Section A-A

You’ve prove to be a great hunter. Now that you have reached the bottom, maybe it’s time to know us more.

learn about us