Casa 3M: an urban sanctuary redefining city living

Presented by Canal&Musse

_project: Casa 3M
_architecture: Studio MK27
_location: São Paulo, Brazil

In contemporary architecture, the concept of creating urban sanctuaries has become increasingly relevant. More than ever, architects are designing spaces that offer tranquility and privacy within the fast-paced rhythm of city life. These projects balance natural integration with spatial strategies, allowing residents to find a peaceful retreat within their own homes.

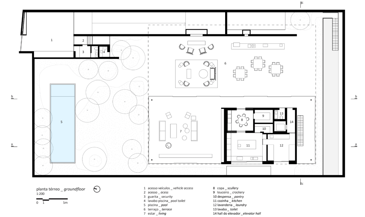
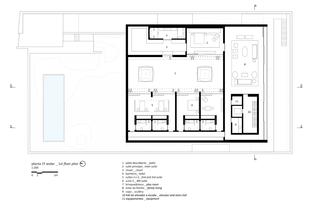
Casa 3M, designed by Studio MK27, embodies this approach. The house is "completely inward-facing," establishing a private oasis in São Paulo’s dense urban setting. “The proposal was to create a refuge turned inward, a true oasis within the urban density of São Paulo,” the architects explain. The design intentionally pulls the structure away from the edges of the plot, surrounding it with a generous tropical garden that serves as a natural barrier. “At the heart of the project, the tropical garden and the pool integrate with the indoor spaces, creating a connection with nature while preserving the residents’ privacy.”

The house's architectural composition is defined by an exposed concrete upper volume that appears to float above the transparent, glass-enclosed ground floor. This contrast enhances both privacy and openness. “The exposed concrete in the upper volume brings privacy to the intimate areas, while the glazed ground floor creates lightness and fosters a strong connection with the garden,” they describe. The hybrid structure, combining steel and concrete, enables large spans without visual obstructions, dissolving the boundaries between interior and exterior. “The ground floor becomes an extended living space, offering various moments and uses.”

One of the key challenges was ensuring comfort in a noisy urban environment. The site is located near a busy avenue, making acoustic isolation a fundamental concern. “The main challenge was to shield the house from urban noise, especially from a high-traffic avenue nearby,” the architects reveal. “The solution was to set the house back from the plot’s edges and create a dense vegetation barrier, towards which the common areas on the ground floor open.” Meanwhile, the upper concrete volume adds another layer of acoustic insulation, with the private rooms turned inward. “The intimate spaces face an internal, tree-lined courtyard, creating a quiet and secluded retreat within the house.”

Architecture can transform urban living by offering a sanctuary within the city. By blending natural elements, thoughtful spatial planning, and carefully selected materials, this residence redefines what it means to live in a metropolitan environment - turning density into serenity.

credits

_article written by Daniela Moreira da Silva
_film by Architecture Hunter
_cover and image scroll by Fernando Guerra

_drawings by Studio MK27:

1. Site plan

2. Floor Plan

3. Floor Plan (1)

4. Floor Plan (2)

5. Section (a)

6. Section (b)

7 Section (c)

You’ve prove to be a great hunter. Now that you have reached the bottom, maybe it’s time to know us more.

learn about us