Campinas 290: a tranquil oasis in São Paulo.

_project: Campinas 290
_architecture: Alexandre Dal Fabbro
_location: São Paulo, Brazil

In the heart of São Paulo, the Campinas 290, designed by architect Alexandre Dal Fabbro, offers a serene retreat, thoughtfully crafted to meet the needs of its inhabitants. This project highlights Dal Fabbro's ability to blend aesthetic elegance with functional precision, creating a living space that transcends mere habitation.

In an interview with the dwellers, they expressed their admiration for the harmonious design, highlighting how the choice of tones and materials contributes to a calming atmosphere. "The project is very coherent with what we asked of Alexandre. The tones and materials used are welcoming and create a very tranquil atmosphere, a retreat from the hustle and chaos of São Paulo," they remarked. This sense of tranquility is a key aspect of the apartment's appeal, offering an escape from the urban environment.

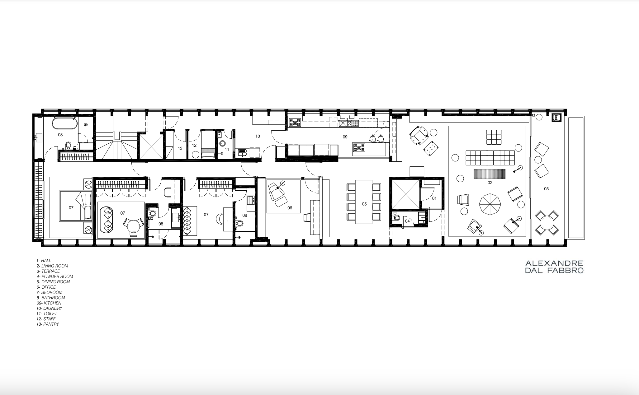
Functionality is a central theme in Alexandre's design philosophy, as evidenced by the apartment's layout, which ensures no space is wasted. The integration of the kitchen with the dining area is a perfect example of this efficiency. "The apartment is very functional. There are no lost or useless spaces. We use the entire apartment," the dweller noted, emphasizing how this seamless integration enhances their daily living experience.

The flexibility of the design is particularly appreciated during social gatherings. The open-plan kitchen and dining area can be utilized as a unified space, fostering a convivial atmosphere during informal dinners with friends. On the other hand, for more formal occasions, the spaces can be discreetly separated to maintain a sense of elegance and order. "In our daily lives, we can use the spaces fully integrated, which is great for our family dynamics. This integration also works perfectly for an informal dinner with close friends around the stove. For a more formal dinner, we can separate the kitchen service very efficiently, without it being noticeable that the spaces were ever integrated," the dweller explained.

The apartament is more than just a residence; it is a carefully designed environment that enhances the quality of life for its occupants, reflecting a perfect blend of warmth, functionality, and sophisticated design.

credits

_article written by Daniela Moreira da Silva
_film by Architecture Hunter
_cover and image scroll by Fran Parente

_drawings by Alexandre Dal Fabbro

1. Plan

You’ve prove to be a great hunter. Now that you have reached the bottom, maybe it’s time to know us more.

learn about us